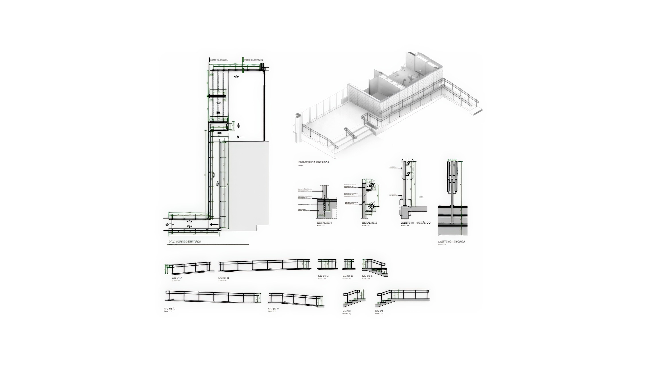
Assinado pelo escritório Jayme Bernardo Arquitetos, o processo de especificação do Ená contou com a nossa expertise no projeto de esquadrias, guarda-corpos, brises e projetos especiais.
Cada elemento foi cuidadosamente projetado para integrar-se ao design arquitetônico, garantindo funcionalidade e durabilidade. Nós trabalhamos na especificação técnica e no projeto executivo, atendendo aos altos padrões exigidos por esse empreendimento.
